Skip to Content

Berkshire

crown

From $453,900

4 - 5
3.5 - 4
2
3,014 - 3,127

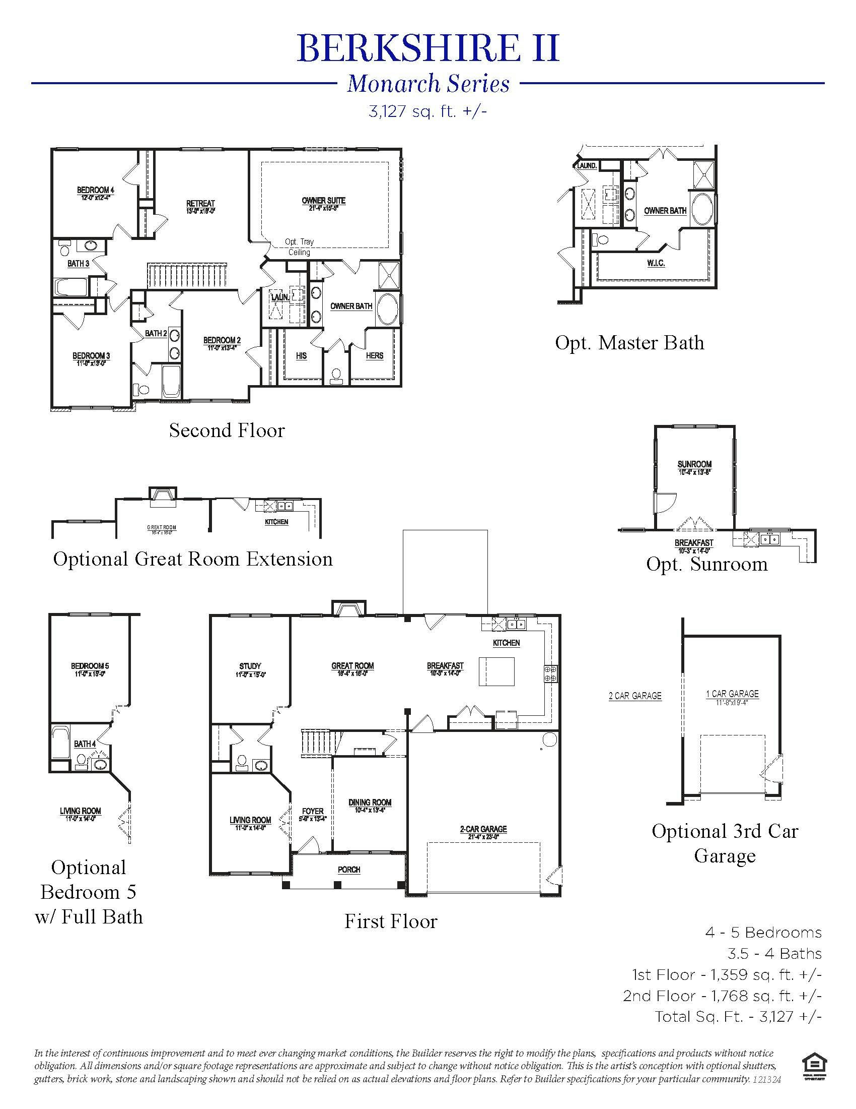
The Berkshire home plan features an inviting open-concept layout beginning with a welcoming foyer that leads to the formal dining room. As you move deeper into the home, you'll find a private study and a bright, airy great room that seamlessly connects to the breakfast nook and the eat-in kitchen. The kitchen showcases a stunning granite-topped island, perfect for cooking, gatherings, and entertaining. Upstairs, the second floor offers a spacious primary bedroom complete with an ensuite bath and a versatile loft/retreat area. Bedrooms 2 and 3 share a full adjoining bath, providing comfort and convenience.  

Features

  • Offers 5 elevations,
  • opt. bedroom 5 with full bath

Contact Our Sales Team

Sales Office Information

Ready to Get Started?

Contact Us Today

© Copyright 2026, Royal Homes of North Carolina, LLC. All Rights Reserved. Home Builder Website Design by Blue Tangerine
Site Map | Legal & Privacy Policy | Accessibility